Apartament 3 camere finisat LA CHEIE - Turnisor Sibiu

  • Apartament 3 camere finisat LA CHEIE - Turnisor Sibiu
  • Apartament 3 camere finisat LA CHEIE - Turnisor Sibiu
  • Apartament 3 camere finisat LA CHEIE - Turnisor Sibiu
  • Apartament 3 camere finisat LA CHEIE - Turnisor Sibiu
  • Apartament 3 camere finisat LA CHEIE - Turnisor Sibiu
  • Apartament 3 camere finisat LA CHEIE - Turnisor Sibiu
  • Apartament 3 camere finisat LA CHEIE - Turnisor Sibiu
  • Pret vanzare 140,000 €

  • Camere 3

  • Structura Cărămidă

  • Suprafata utila 57.4

  • Compartimentare Decomandat

  • Numar bai 1

  • Regim inaltime P+1E+M

  • Bucatarii 1

  • Etaj 2

  • An constructie 2024

  • Tip constructie Bloc de apartamente

  • Locuri de parcare 2

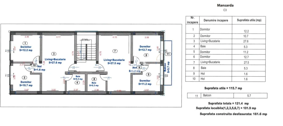
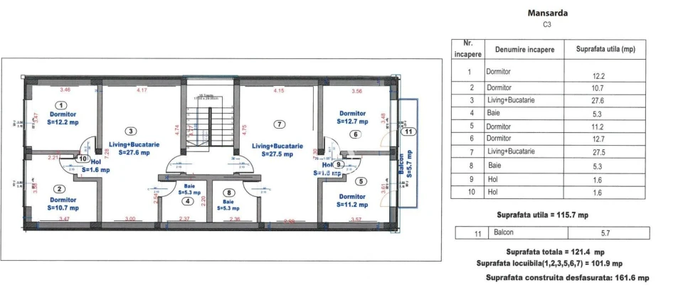
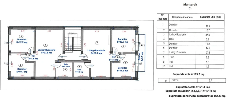
Descrierea proiectului

Descoperă un apartament modern cu 3 camere, situat într-un proiect rezidențial nou din cartierul Turnișor, o zonă liniștită și bine conectată la oraș. Imobilul este intabulat, iar apartamentul se află în curs de finisare, oferind posibilitatea de personalizare a detaliilor interioare.

Suprafață utilă: 57.4 mp

Compartimentare practică:

✔️ 2 dormitoare

✔️ Living cu bucătărie open-space

✔️ Baie cu geam natural de aerisire

Etaj - 2

Facilități suplimentare:

2 locuri de parcare în curte privată, incluse în preț

Încălzire în pardoseală – confort termic ridicat

Finisaje de calitate la interior (la alegere în funcție de stadiul lucrărilor)

Acces rapid către punctele de interes din oraș

Apartament intabulat - predare imediata!

Se acceptă credit ipotecar

Preț: 140.000 €

Pentru vizionări: 0756.033.943 – Claudiu

Catalog Welhome

Ansambluri rezidentiale din Sibiu

*Peste 200 de apartamente in portofoliu

Te-ar putea interesa si:

TOATE APARTAMENTELE
Narcisa Welhome

Narcisa

Contacteaza un expert imobiliar pentru o consultatie

0756 094 405

Descarca GRATUIT brosura

Completeaza detaliile de contact pentru a descarca prezentarea